Bauaufgabe – Planung

 

 

Sanierung, technischer Ausbau (Elektro) und Einrichtung

meiner Werkstatt / meines Ateliers


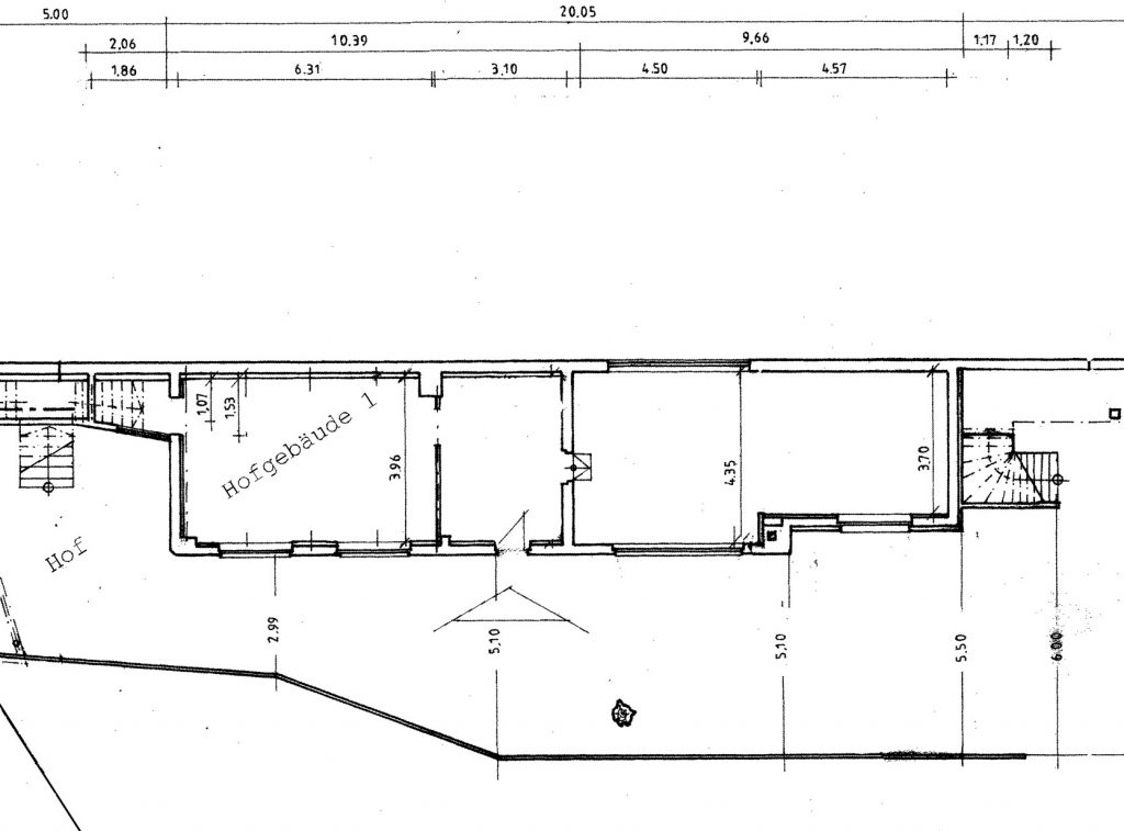
Erdgeschoss der ehemaligen 'Malerwerkstatt Tack' (1898) 

mit Flachdachanbau (ca. 1954)


3 Räume (Diele, Werkstatt, Atelier) + Nasszelle (Labor)

insgesamt ca. 84 m²

Entwurfskonzept:

– Entfernen der alten Innenverkleidungen (dahinter modert es gewaltig)

– Sanierung des feuchte- und salzbelasteten Mauerwerks mit Kalk- und Lehmkalkputz

– Innenausbau mit möglichst vielen Bestands-Materialien / Altholz und -metall

– neue Elektro-Installation mit historischen Bakelit- und Duroplast-Elementen aus Gebrauchtkäufen

 

Raumprogramm:

– Diele als Empfangs- und Ausstellungsraum (Schleuse)

– "Staub"-Werkstatt mit überwiegend Holz- und Steinbearbeitung

– "Sauber"-Werkstatt für Fein-, Metall- und Montagearbeiten 

– Oberflächen- und Kunst-Atelier

– kleine Nasszelle als "Farb-Labor"

 

Hier beginnt mein Werkstatt-Blog

Neue Beiträge werden jeweils zuoberst eingestellt.

Letzte Aktualisierung: 03/OKT/2023

Baustellen-Tagebuch



Die Werkstatt ist fertig!!!

Zum Video:

Was zuvor geschah:

Werkstatt:

Neubau Maschinentische

 

– Restbestände aus Rückbau

– Stahlwinkel-Profile, Sperrholzplatten 

– Einmessung der Kombi-Tischlermaschine

Problem

Der Fußboden ist völlig uneben und fällt teilweise bis zu 3 cm zum Rand hin ab.

Um eine horizontale Arbeitsfläche in Waage zu erhalten, habe ich jede Stütze individuell in der Höhe angepasst.

 

 

Werkstatt:

Neubau Maschinen-und Laptop-Tisch

 

– Restbestände aus Rückbau

– Stahlwinkel-Profile, Sperrholzplatten

– Unterseitige Dämmung für das Laptop     wegen Einbau über Heizkörper

– Schallplattenspielerhaube als Staubschutz

Werkstatt:

Neubau / Lackierung Arbeitstisch

 

– Unterboden-Elektrifizierung

  mit 3er-Steckdose

– staubdichte Unterfächer und Einschübe

  aus Reststücken (Spanplatten), oxydrot

 

vorher / nachher

Werkstatt:

Neubeschichtung Boden / neue Fußleisten

 

– Alte Bretter grob gehobelt und gekittet

– Rundungsprofil angefräst

– Lackierung oxydrot ("Ochsenblut")

– passgenauer Höhenausgleich am

   krummen Fußboden (> 30 mm)

Werkstatt:

– Decke dünn mit Gipsputz übergespachtelt

– Arbeitsleuchten gereinigt, neu verkabelt

– historische Installation (Bakelit, Erdkabel)

– alte Leuchstoffröhren gegen LED getauscht

Werkstatt:

– die zerschrundene Wand 

– minimale Schichtdicke 

> ausnahmsweise Gipsputz

– Eckschienen gesetzt

– fertig geputzt und gefilzt

Werkstatt:

– fertiger Arbeitsbereich 

– kaputte Wand

– mit selbstgemachtem Kalkputz abgezogene Wand

Das Atelier

Atelier

Ist-Zustand. Rumpelraum. Lose Steine, rostiges Eisen, kein Licht, kein Strom (nur über Kabeltrommel).

Muss ich mal bei.

v.l.n.r.

– Kalk löschen in alter Badewanne

– Kalkbrei, Lehm, Putzsand 0/1 und Wasser werden …

– … gemischt und …

– … das Mauerwerk wird verfugt und eingeschlämmt

Raumgestaltung

– fertig eingeschlämmte Außenwände (teilweise noch feucht wegen Schichtdicke), Fenster mit Mattglas-Folie, gebrauchte Möbel

– alle Träger mit Restfarbe (Rostschutz silbergrau) gestrichen 

– Tür und Trennwand gestrichen mit "Ochsenblut"-Farbe (Restbestand#recycling), Tür mit alter Pinwand, überlackiert

– Einrichtung der Metall- und Schleifwerkstatt, alles komplett aus Restbeständen/Kellerfunden und der alten Werkbank meines Vaters.

– Arbeitsbeleuchtung aus Schrottware (#recycling), mit LED-Röhren ertüchtigt

– Installation BOSE-Boxenanlagen mit Subwoofer, hier is' jetzt ROCK-Werkstatt!!!

Elektrifizierung 

 

– endlich (Dreh-)Strom inner Bude!

– Unterverteilungskasten mit Ausstattung gebraucht günstig geschossen, FI-Schalter nachgekauft

– Steckdosen, Verteilerdosen und Schalter Duroplast weiß (nach und nach bei Ebay ersteigert)

– Kabelklemmen Bakelit aus DDR-Beständen (nach und nach bei Ebay ersteigert)

– handelsübliches, schwarzes Erdkabel

 

 

Fertig!

Diele (Ausstellungsraum)

Diele

Die Diele ist kein Raum, das Haus kein Gebäude, es ist … ein Haufen Steine.

Das alte Gussrohr kann ich gebrauchen (#upcycling) für ein Möbelprojekt (Link folgt)

Die alte Trennwand in 1980er-Limba hätte ich gerne in Paletten-Holz (#upcycling), mit 1950er Duroplast-Steckdosen.

Der Boden wird mit Steinen vom Hof gepflastert, außerdem mit Reststeinen Granitpflaster.

Fertig!

Der Außenbereich

Trockenlegung

In der Diele ist innen eine (einzige) Stelle durchgehend durchnässt.

Vermutung: Pflastersenkung (durch Wurzel-Dickenwachstum) und damit Oberflächenwasser zum Gebäude hin

Maßnahme: Pflaster aufnehmen, Grundmauer 30 cm freilegen, Sichtung, Schadens-Analyse

Feststellung: gebrochenes Tonrohr (für Fallleitung) im Boden >> Hauptursache

Maßnahmen: Grundleitung abdichten, Pflaster mit abschüssigem Gefälle verlegen, neue Schwelle mit Estrich-Beton gießen

Recycling: Mauerwerk zusätzlich mit Bitumenbahn-Resten gegen seitliche Feuchtigkeit isoliert

Ergebnis: innen trocknet alles ab … Schimmel und Muffel: ade!